Contacto
Empresa
Clientes
Noticias
Productos
Inicio
Redes de agua potable y líquidos cloacales
Agua y Cloacas
Cañería de PVC
AGUA - Clase 6 y 10
CLOACAL
Cañería de Polietileno
Polietileno - Alta Densidad
Polietileno - Baja Densidad
Accesorios de PVC
Agua - Clase 10 J/E
Cloacal
Válvulas e Hidrantes
Esclusa
Aire
Mariposa
Retención
Hidrante
Accesorios de hierro
Adaptadores y Bridas
Adaptadores y Juntas de Amplia Tolerancia
Juntas de Reparación
Plásticas
Hierro
Abrazaderas y Kits domiciliarios
Abrazadera de derivación
Llave y válvula docimiciliaria
Accesorios para conexiones domiciliarias
Cajas Plásticas
Caja para Medidor
Caja para Válvula esclusa / Hidrante / Inspeccion Cloacal
Cajas y Marco y Tapa de Hierro
Caja de Medidor, Esclusa e Hidrante
Marco y reja de desagüe
Marco y tapa boca registro
Medidores y MacroMedidores Agua
Accesorios Eletrofusión
Electrofusión
Mallas de Advertencia
Malla de advertencia agua y cloaca
Dosificadoras de cloro
Dosificadoras de cloro
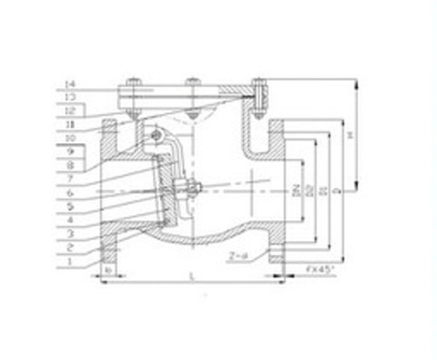
Válvula Retención HD a Clapeta Bridada
* Cuerpo de Hierro Fundido recubierta interna y externamente en pintura epoxi
* Asiento elástico

* Posee un disco (clapeta) articulado, lo que permite que se genere un paso total del fluido en su posición de apertura total. El diseño de la clapeta asegura una perfecta estanqueidad en su punto de cierre.

* Esta diseñada para trabajar en redes y estaciones de bombeo

* Bridas y orificios según DIN 2501 PN16

* Presión Nominal: 16 Bar

Compañía Hídrica Argentina S.R.L. © Todos los derechos reservados Inicio | Productos | Noticias | Clientes | Empresa | Contacto
Diseño y Desarrollo Web | Media Bocha